Skip to main content Skip to page footer

Jetzt Richtpreis anfragen!

Nutzen Sie die Gelegenheit für ein unverbindliches Erstgespräch und erfahren Sie mehr über die Kundenreferenz.

Oder anrufen: 07274 1007

Daten und Fakten.

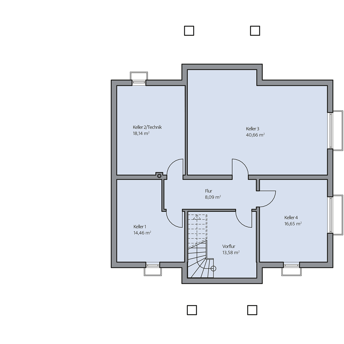
Flächen WF GF
KG 111,6 m²
EG 106,3 m² 106,3 m²
OG 106,9 m² 117,5 m²
Gesamt 213,2 m² 335,4 m²
Dachneigung 26°
Kniestock 0 cm

Hausbeschreibung.

Optisch angelehnt an die Herrenhäuser des Südens, überzeugt das Haus der Familie Dalmann mit einem stilvollen, modernen Schliff. Die ebenerdige, überdachte Außenfläche sowie der dezent blickdicht gehaltene, auf mediterranen Säulen stehende Terrassenbereich im Obergeschoss sind an lauen Sommerabenden absolut einladend. Auch der rund 60 m² große Wohn- und Essbereich mit seinen großen Flügeltüren im Inneren des Hauses versprüht pure Gastlichkeit. Die Garage hat eine direkte Verbindung zum Haus. Und wird es in der praktisch gelegenen Abstellkammer eng, bieten die vier Kellerräume über 110 m² ausreichend Platz. Ein weiterer Pluspunkt: Das Haus verfügt über drei Bäder. Ein WC im Erdgeschoss sowie zwei komplette Badezimmer für Eltern und Kinder oder Gäste in der oberen Etage.

Oder anrufen: 07274 1007

Vereinbaren Sie jetzt Ihr kostenloses Erstgespräch.

Und profitieren Sie vom Rundum-Service.

Termin vereinbaren

Oder anrufen: 07274 1007

Oder fordern Sie jetzt Ihr kostenloses Info-Paket schnell und einfach an.

Mit neuem Hauskatalog inkl. Preisbroschüre.

Komposition der Unterlagen des Info-Pakets von Roth Bau

Ihr kostenloses Infopaket.

Sie erhalten ein kostenfreies Infopaket per Post, alternativ oder zusätzlich gerne auch in digitaler Form. Unser Infopaket beinhaltet unseren Hauskatalog, eine Preisliste und weitere informative Broschüren.

Mit dem Versenden dieses Formulars willigen Sie der Verarbeitung Ihrer Daten ein, stimmen der Kontaktaufnahme durch die Roth Bau GmbH zu. Diese Einwilligung können Sie jederzeit per E-Mail an info@roth-baumeisterhaus.de widerrufen. Detaillierte Informationen zum Umgang mit Ihren Nutzerdaten finden Sie in unserer Datenschutzerklärung.

Mit * markierte Felder sind Pflichtangaben.