Skip to main content Skip to page footer

Jetzt Richtpreis anfragen!

Nutzen Sie die Gelegenheit für ein unverbindliches Erstgespräch und erfahren Sie mehr über die Kundenreferenz.

Oder anrufen: 07274 1007

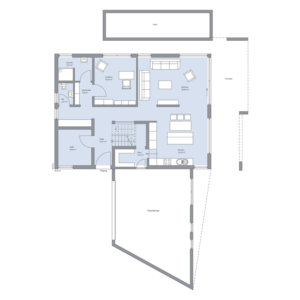
Daten und Fakten.

Flächen WF GF
EG 104,0 m² 106,5 m²
OG 121,5 m² 135,3 m²
Gesamt 225,5 m² 241,8 m²
Dachneigung 25°
Kniestock -
Außenmaße 13,25 m 9,75 m

Hausbeschreibung.

Haus Erhardt ist weit mehr als Standard. Das Obergeschoss mit auffälliger hellgrauer Plattenfassade und auskragender Bauweise zeigt sofort das Besondere. Eine riesige Doppelgarage nutzt mit trapezförmiger Grundfläche die ungewöhnliche Form des Eckgrundstücks optimal aus. So findet sich noch ausreichend Platz für eine ebenerdige Terrasse und den Außenpool. Durch den Haupteingang gelangt man in den mit 50 m² sehr geräumigen Wohn-, Koch- und Essbereich. Glasschiebetüren führen direkt auf die überdachte Terrasse und zum Pool. Ein separater Arbeitsbereich der Eigentümer mit eigener Dusche und Garderobe lässt ungestörtes Arbeiten zu. Im Obergeschoss befinden sich ein Schlafbereich mit eigener Ankleide, zwei Kinderzimmer und ein vollwertiges Bad. Die Räume sind mit jeweils deutlich über 20 m² sehr großzügig bemessen. Haus Erhardt schafft spielerisch den Spagat zwischen dezenter Eleganz und architektonischer Extravaganz. So erhält man eine ganz besondere und individuelle Immobilie für Familien.

Oder anrufen: 07274 1007

Vereinbaren Sie jetzt Ihr kostenloses Erstgespräch.

Und profitieren Sie vom Rundum-Service.

Termin vereinbaren

Oder anrufen: 07274 1007

Oder fordern Sie jetzt Ihr kostenloses Info-Paket schnell und einfach an.

Mit neuem Hauskatalog inkl. Preisbroschüre.

Komposition der Unterlagen des Info-Pakets von Roth Bau

Ihr kostenloses Infopaket.

Sie erhalten ein kostenfreies Infopaket per Post, alternativ oder zusätzlich gerne auch in digitaler Form. Unser Infopaket beinhaltet unseren Hauskatalog, eine Preisliste und weitere informative Broschüren.

Mit dem Versenden dieses Formulars willigen Sie der Verarbeitung Ihrer Daten ein, stimmen der Kontaktaufnahme durch die Roth Bau GmbH zu. Diese Einwilligung können Sie jederzeit per E-Mail an info@roth-baumeisterhaus.de widerrufen. Detaillierte Informationen zum Umgang mit Ihren Nutzerdaten finden Sie in unserer Datenschutzerklärung.

Mit * markierte Felder sind Pflichtangaben.