Skip to main content Skip to page footer

Jetzt Richtpreis anfragen!

Nutzen Sie die Gelegenheit für ein unverbindliches Erstgespräch und erfahren Sie mehr über die Kundenreferenz.

Oder anrufen: 07274 1007

Daten und Fakten.

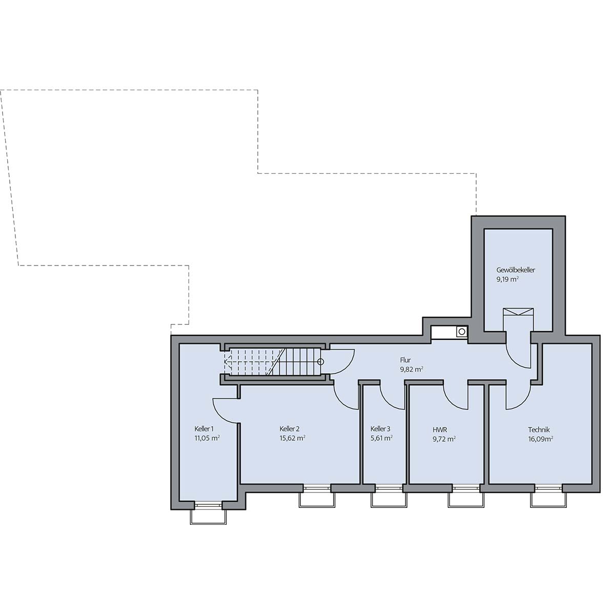
Flächen WF GF
KG 77,1 m²
EG 124,3 m² 125,4 m²
OG 107,3 m² 114,1 m²
SPB 21,8 m² 21,8 m²
Gesamt 253,4 m² 338,4 m²
Dachneigung 30°
Kniestock 0 cm
Außenmaße 12,24 m 15,61 m

Hausbeschreibung.

Beim Haus Rademacher profitieren die Bewohner vom komfortablen Raumprogramm mit hellen Räumen und einem hervorragenden Energiekonzept. Als typischer Vertreter einer schlichten Bauhaus-Architektur präsentiert sich dieses Objekt mit klaren Konturen, einem Satteldach ohne Überstand und frei kombinierten geometrischen Elementen.

Innen bietet das Haus auf 253 m² Wohnfläche plus Teilkeller und Spitzboden ein komfortables Ambiente mit großzügigen, lichten Räumen. Gekocht wird im Anbau in einer funktionalen Küchenzeile, der Übergang zum Essplatz ist fließend. Wohn- und Essbereich staffeln sich in der Längsachse der längeren Baukörperhälfte. Das Obergeschoss des Hauses ist den Individualräumen von bis zu 5 Personen vorbehalten. Das vorbildliche Energiekonzept basiert auf einer gut gedämmten Außenhülle, einer Brennwert-Gastherme, einer Solaranlage mit 7.000 l Langzeitspeicher und einer Lüftung mit Wärmerückgewinnung, die den Bewohnern einen Primärenergiebedarf von 27,7 kWh/m²a bescheren.

Oder anrufen: 07274 1007

Vereinbaren Sie jetzt Ihr kostenloses Erstgespräch.

Und profitieren Sie vom Rundum-Service.

Termin vereinbaren

Oder anrufen: 07274 1007

Oder fordern Sie jetzt Ihr kostenloses Info-Paket schnell und einfach an.

Mit neuem Hauskatalog inkl. Preisbroschüre.

Komposition der Unterlagen des Info-Pakets von Roth Bau

Ihr kostenloses Infopaket.

Sie erhalten ein kostenfreies Infopaket per Post, alternativ oder zusätzlich gerne auch in digitaler Form. Unser Infopaket beinhaltet unseren Hauskatalog, eine Preisliste und weitere informative Broschüren.

Mit dem Versenden dieses Formulars willigen Sie der Verarbeitung Ihrer Daten ein, stimmen der Kontaktaufnahme durch die Roth Bau GmbH zu. Diese Einwilligung können Sie jederzeit per E-Mail an info@roth-baumeisterhaus.de widerrufen. Detaillierte Informationen zum Umgang mit Ihren Nutzerdaten finden Sie in unserer Datenschutzerklärung.

Mit * markierte Felder sind Pflichtangaben.